Project: Single-storey side extensions at St. Augustine Church.
Location: St. Augustine Coptic Church Station approach Gomshall Surrey GU5
Project Cost: £200K – £300K
Tag: Piles, Ground beams, steel frames & retaining wall.
Client: St. Augustine Church
Year: 2017 - 2018
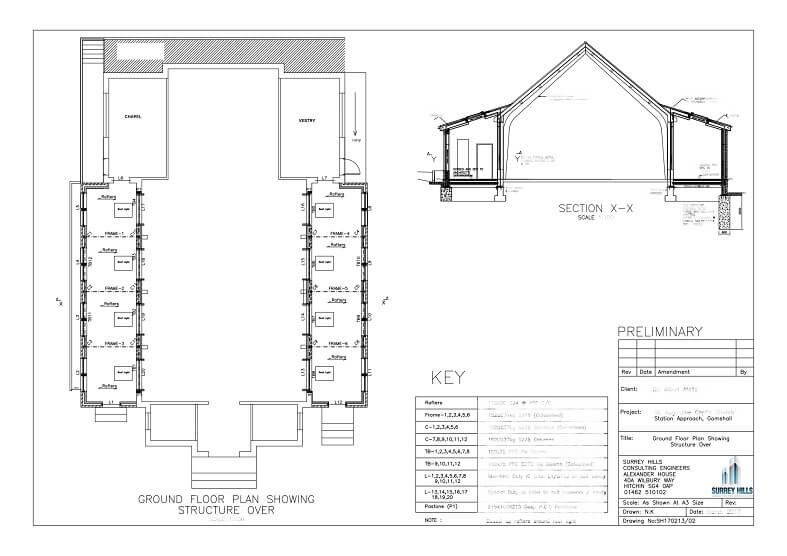
Key Tasks: The main requirement of the job was to extend Church from both sides. The key challenge was of lateral stability as the existing structure is timber frames hence stability was the prime issue. Secondly there were large trees presence nearby hence pile foundation solution was adopted while on the side retaining wall was needed. Cranked frames solution was proposed at either end, not only to support new roof but also to stabilise the existing timber frame structure.