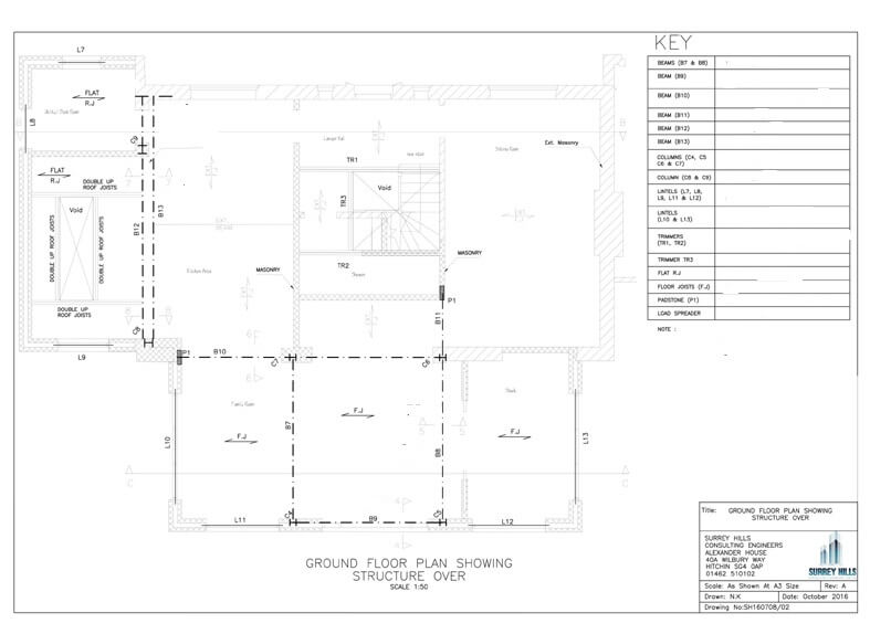
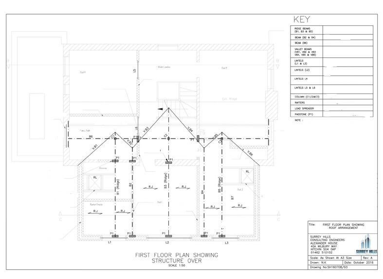
Project: Two-storey rear extension, single-storey side extension, chimney stack removal at ground floor level.
Location: Brownlow Road Berkhamsted HP4
Project Cost: £70K – £120K
Tag: Steel frames, Timber cladding, Beam & Block ground floor, Risk assessment.
Client: Mr. & Mrs. A
Year: 2016
Key Tasks: The client requirements were to have vaulted ceiling over the rear extension and to remove chimney stack at ground floor level to have wide open area. Our initial site visit helped us to see existing structure condition and to identify our restriction in terms of using load bearing wall etc. As we were also responsible to provide CDM regulations hence we have also carried risk assessment. The project went very smoothly though couple of queries came during construction.