Project: Single-storey rear extension to a flat at high rise building.
Location: Kings Court Chelsea London SW3
Project Cost: £50K – £100K
Tag: Composite beams, upstand beams.
Client: Kinash Construction
Year: 2016
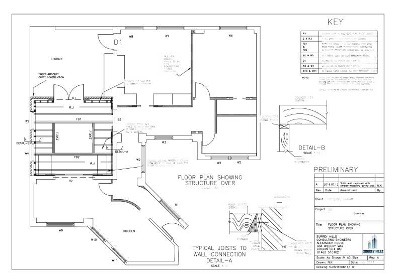
Key Tasks: One of the interesting projects to have extension at upper-storey flat without disturbing lower floor tenants. Load path was carefully chosen to justify further loads over existing foundations. Our intension was to choose such a path which distribute load evenly to avoid concentrated load at one point. Couple to upstand composite beams were introduced to support upper masonry cavity at the extension. Lateral stability was insured by running PFC over inner leaf to provide a diaphragm action.