Project: Single-storey rear extension & internal alteration.
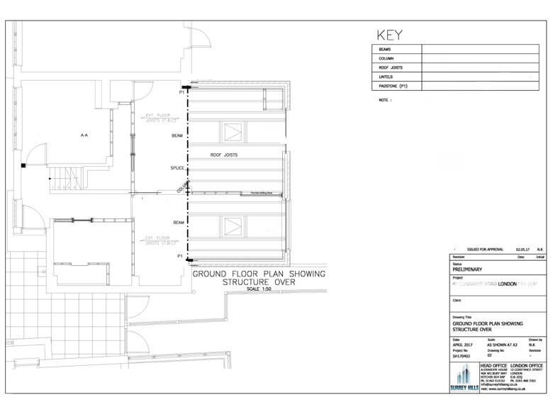
Location: Congreve Road London SE9
Project Cost: £30K – £70K
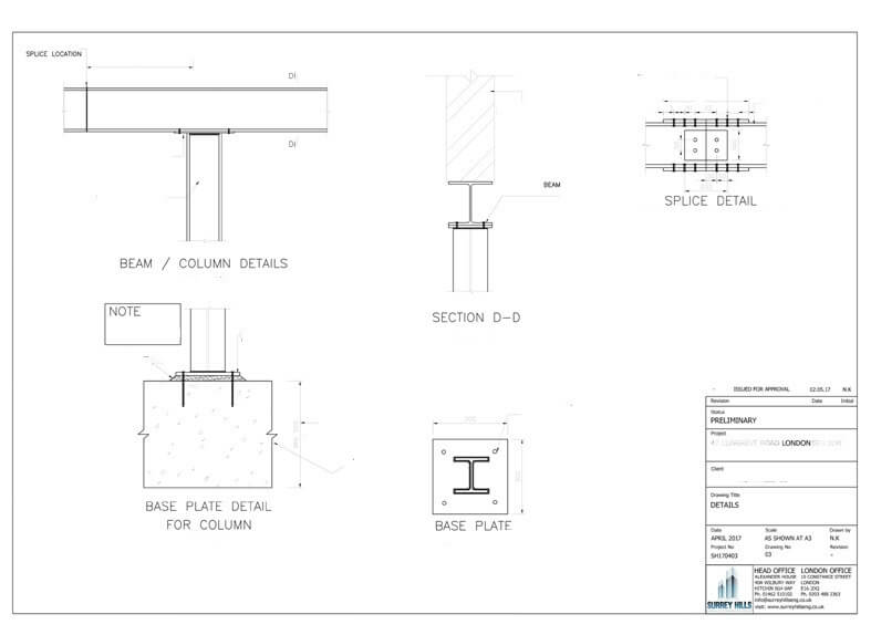
Tag: steel beams, Splice, beam & block ground floor, Lintels, Padstone sizes.
Client: Mr. K
Year: 2017
Key Tasks: Typical a single-storey rear extension to an existing house. As soil to be most likely as per BSG London clay formation, clay, silt & sand hence proposed beam & block solution for ground floor.