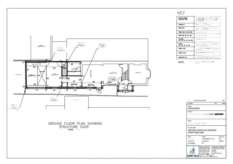
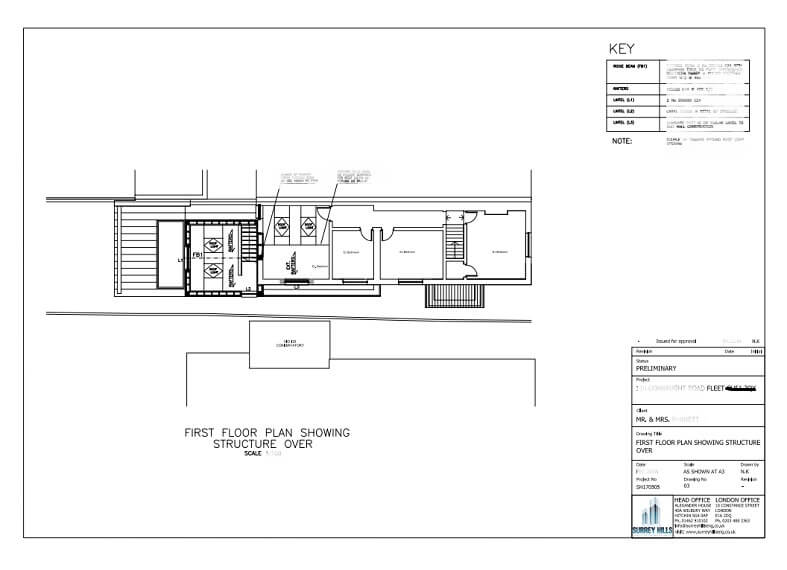
Project: Part two, part single-storey rear & side extension.
Location: Connaught Road Fleet Hampshire GU51
Project Cost: £50K – £100K
Tag: steel beams, solid ground floor, Lintels, Padstone sizes.
Client: Mr. & Mrs.
Year: 2017
Key Tasks: Typical part two, part single-storey rear extension to an existing house. The key challenge was lintels as per site requirement and design. One the window on first floor side elevation was like L shape from roof to exterior wall. Special considerations were taken to support the roof by providing trimmers. Other challenge was lateral stability of the house hence provided picture frames.