Project: Single-storey rear & side extension & internal alteration to a restaurant.
Location: Empire Building Dartford DA1
Project Cost: £50K – £100K
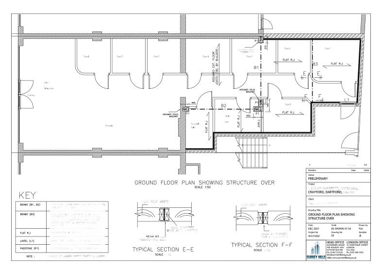
Tag: steel beams, beam & block ground floor, Masonry piers.
Client: Mrs. H
Year: 2017
Key Tasks: The restaurant client requirements were to have wide open area at the back of the restaurant while keeping the middle masonry as a pier to keep cost down. The challenging part in this job was a shallow drainage pipes which needs to be redirected or find alternative solution. After completion of the job the client requirement changed to have a green roof over new flat roof. We have also provided a solution to green roof by strengthen up joists. As we always say, “Almost everything is possible in Engineering, it just a matter of cost and time”.