Project: Single-storey rear extension & internal alteration.
Location: Greenside Road Hitchin Herts SG5
Project Cost: £50K – £100K
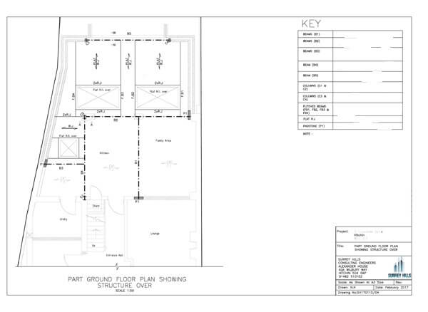
Tag: steel beams, beam & block ground floor, Retaining Wall.
Client: Mr. & Mrs. M
Year: 2017
Key Tasks: A single-storey rear extension on a sloping ground required a retaining wall. The RC retaining wall is designed to move forward.