Project: Loft conversion and a single-storey rear & side extension.
Location: Ickleford Road Hitchin Herts SG5
Project Cost: £50K – £100K
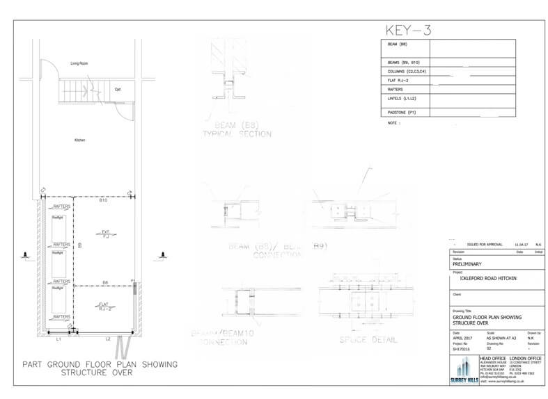
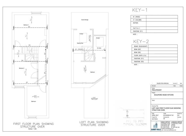
Tag: Chimney support, cranked beams, beam over bi-folding door.
Client: Mr. R
Year: 2017
Key Tasks: As the site have very limited space so the client requirement was to maximise the space via loft conversion along with side & rear extensions. The challenging part in this job was to have a cranked beam to suit profile. Chimney stack was supported by providing beam. The foundations were checked against NHBC requirement of buildings near by trees. Beam & block ground floor was proposed and adopted.