Project: Loft conversion and a single-storey rear extension to a timber frame house.
Location: Maltbys Selbourne Hampshire GU34
Project Cost: £50K – £100K
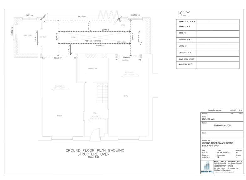
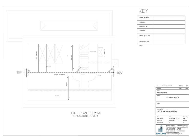
Tag: Timber frame, cranked beams.
Client: Ms. S
Year: 2017
Key Tasks: Loft conversion to a timber frame house is quite challenging especially if you have longer loft to find supports for the new loads or beams. As the inner leaf is made of timber-stud wall so there is a restriction of using padstones. Cranked beams over columns were introduced as the ceiling is not rested on the inner leaf infect it cut the rafters. The columns were push down to ground floor within timber studwork rested on concrete pads.
Loft conversion to timber frame building