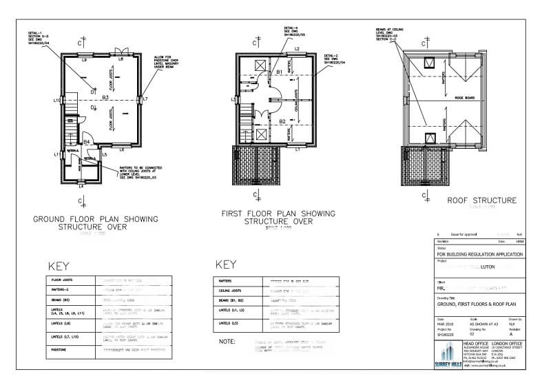
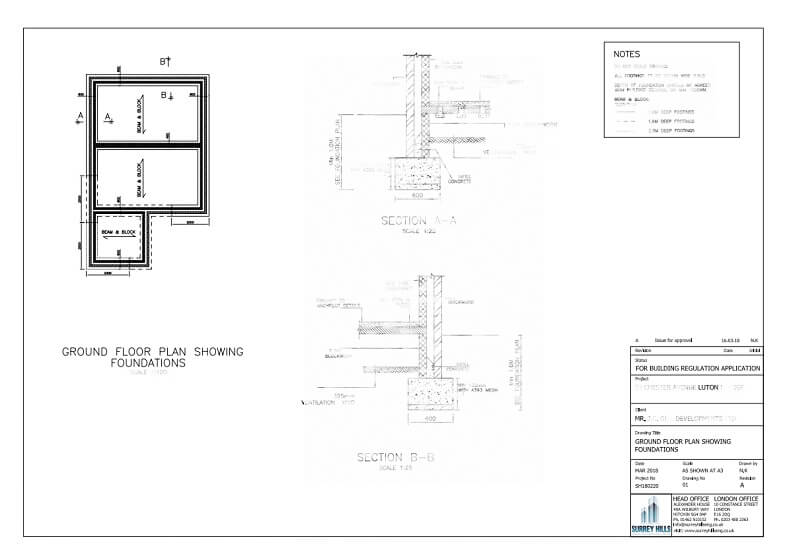
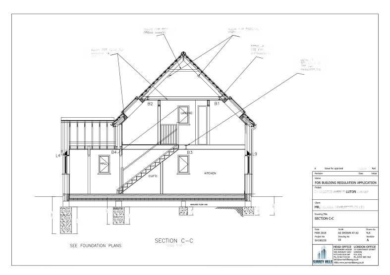
Project: Two-storey new build dwelling.
Location: Chester Avenue Luton LU4
Project Cost: £150K – £200K
Tag: steel beams, beam & block ground floor, Corner bi-folding door.
Client: J.C Gill Development
Year: 2018
Key Tasks: Our services were hired for a new two-storey dwelling in Luton area. The key challenge in this project was foundation design as trees were present nearby, we designed foundation w.r.t NHBC requirement of building near by trees. As soil condition were also unknow hence proposed beam & block for the worst-case scenario of ground heaving etc.