Project: Creating living space within existing roof loft.
Location: River Haven, Wargrave RG10
Project Cost: £50K – £100K
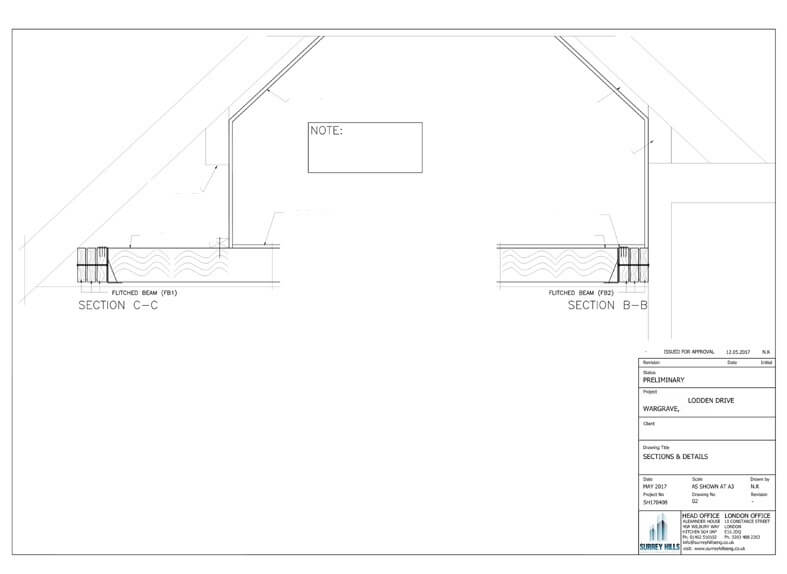
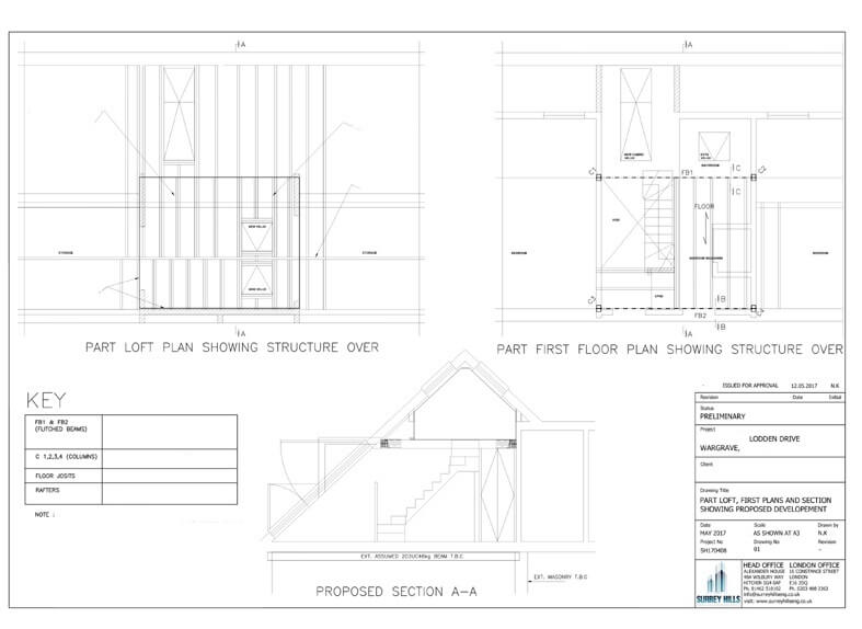
Tag: Flitched beam, timber columns, rafters and trimmers.
Client: CAD UP
Year: 2017
Key Tasks: The challenging part in this job was to cut existing ceiling joists to lower down the ceiling and to create floor instead which makes rafter unstable, to over come this problem and to provide support for the rafters, flitched beams were introduces. The flitched beams were then supported on timber columns within existing timber-stud work. Lateral restraint straps were installed between new floor and rafters along with ply to create stability within structure.