Project: Single-storey rear extension & internal alteration.
Location: Chivenor Place St. Albans Herts AL4
Project Cost: £50K – £100K
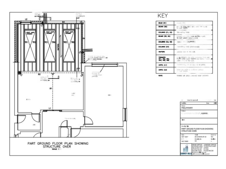
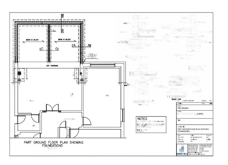
Tag: steel cantilever beams, beam & block ground floor, Corner bi-folding door.
Client: Mr. H
Year: 2017
Key Tasks: A single-storey rear extension with a corner bi-folding door. The key challenge was to provide a structural solution to suit site requirement. Steel cantilever beams were designed to have a corner open bi-folding door.