Project: Existing barn conversion and extension.
Location: Topham End Farm Barn Colmworth Beds MK44
Project Cost: £150K – £200K
Tag: Underpinning, Flitched ridge beams, steel beams, beam & block ground floor, Vaulted Ceiling
Client: Mr. M
Year: 2017 - 2018
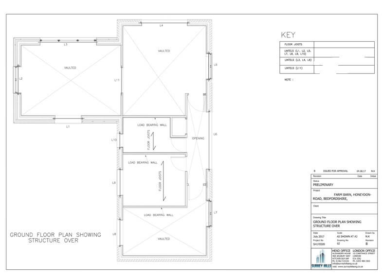
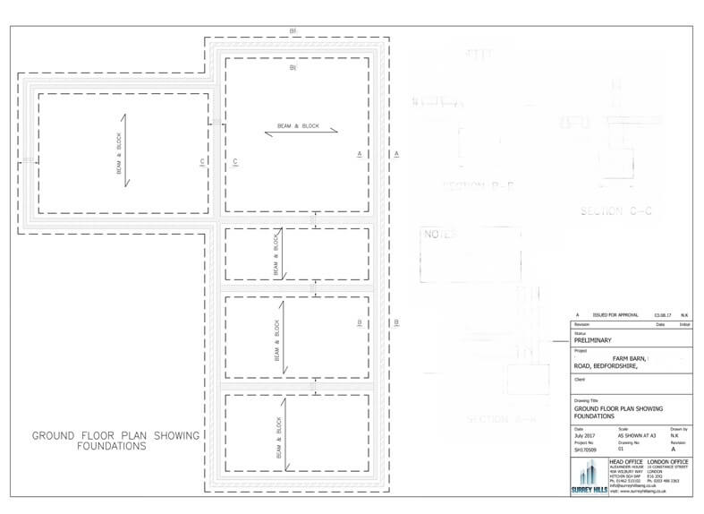
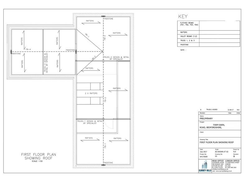
Key Tasks: Conversion of existing farm barn to a two-storey dwelling & extension. The key task was to adopt a design strategy which is not only economical but also practical and fulfil client requirement at the same time. The existing barn was built on a solid slab with a no or very little foundation hence underpinning solution was adopted where required. The rest of the job was straight forward with a ridge beam, floor joists and trimmers to suit site requirement.